Клиентам незачем вносить всю сумму сразу. Этапы оплаты строительства модульного дома разделены следующим образом:
70% вносится наличным или безналичным способом после подписания договорных условий.
25% — после выполнения промежуточных работ, подписания актов, другими словами, после производства модулей.
5% - после завершения работ и подписания акта о приемке модульного дома.
Сумма выполнения запаса оговаривается между сторонами, фиксируется в договоре посредством подписания обеими сторонами. С этого момента непредвиденные ситуации и дополнительные денежные затраты полностью исключены. В стоимость входят следующие моменты:
выезд специалиста на осмотр земельного участка (перед заключением договора);
производство модулей;
монтаж электрики: внутренней и наружной;
установка сантехники;
отделочные работы «под ключ»;
строительство модульного дома;
подключение инженерных систем в местах ввода строения;
работы с верандой и уличной лестницей.
Услуги транспортировки, погрузочно-разгрузочные работы, возведение фундамента и инженерные системы на земельном участке оплачиваются отдельно.
Модельный дом можно приобрести в ипотеку! В таких ситуациях денежные переводы сделает банковская организация. Клиентам придется выплачивать ежемесячные взносы банку в размере, предусмотренном договором. Наша компания работает легально. Аккредитована. Оформить ипотеку для строительства модульных домов можно с помощью большого спектра программ.
ДОСТАВКА И РАЗГРУЗКА
О доставке модуле позаботится наша компания. Доставка осуществляется силами партнера, сертифицированной транспортной компанией. Автопарк располагает необходимыми видами спецтранспорта. Модули доставляются быстро, в целостности и сохранности, на указанный клиентом участок.
Стоимость рассчитывается в индивидуальном порядке. Зависит от следующих момента:
Разновидности дома;
Удаленности его от фабрики.
Стоимость рассчитывается точно после пробного выезда на земельный участок для подтверждения проходимости тралов. После этого цена становится фиксированной, не подлежит изменению.
Для доставки модулей используется следующее оборудование и транспорт:
Кран 25 Т — для погрузки модулей на фабрике и участке заказчика.
Низкорамные тралы — для транспортировки модульной конструкции.
Манипулятор — используются при невозможности подъезда трала на расстояние 10 м от фундамента.
С помощью одного трала можно транспортировать 2 модуля, с помощью манипулятора — 1. Для строительства модульного дома квадратурой 66 кв.м. потребуется 3 трала или 6 манипуляторов. Исходя из этого рассчитывается конечная стоимость услуги доставки.
Если у вас остались вопросы, предлагаем связаться с менеджером компании в телефонном или онлайн-режиме.
ГАРАНТИЯ
Обслуживание инженерных систем бесплатно в течении года. В течение 1 года эксплуатации дома компания не только предоставляет гарантии на неисправности, но и занимается бесплатным обслуживанием модульной конструкции.
Специалисты на бесплатной основе проводят плановое обслуживание, отладку, прилагают максимум усилий для достижения высокой эффективности. Также бесплатное обслуживание на 2 года гарантировано на электрические сети, канализационную систему и водоснабжение.
Как воспользоваться гарантией? При выявлении неисправностей или других проблем в процессе эксплуатации модульного дома (появления неполадок с электросетями, водоснабжением и канализацией) следует сделать телефонный звонок оператору или оставить заявку. Специалист ознакомится с проблемой, выберет удобную для обеих сторон дату для осмотра неисправности. Далее специалист возьмет под собственный контроль выезд сотрудников на объект. После изучения неисправностей, недостатки будут исключены в максимально короткие сроки.
Продолжительный срок гарантии. Чем связан? Материалы. Для возведения модельного дома компания работает исключительно с высококачественными материалами. Утепляющие, пароизоляционные материала, высокопрочный ламинат и просушенные пиломатериалы, проверены практикой, сертифицированы. Именно эти критерии и ответственный подход компании увеличивают срок службы дома.
Проектирование. Надежность конструкции закладывается на этапе проектирования. Разработкой проекта проводится архитектора с большим опытом работы в данном направлении. Применяемые решения позволяют сделать дом комфортным и уютным. Неоднократные испытания конструкции доказали – проблем и других неприятных неожиданностей не будет!
Производство. Модульные дома изготавливаются качественно. Контроль со стороны специалистов осуществляется на каждом этапе изготовления. На заводе работают специалисты с опытом. Сборка проводится в условиях производственного цеха, при комфортной температуре. Ответственный подход гарантирует длительный срок службы без потери первоначальных характеристик, стопроцентную герметичность строения.
Сборка. Модульные дома собираются на предварительно исследованных и осмотренных специалистками участках. Отлаженная схема сборки полностью исключает ошибки, в том числе и вмешательство человеческого фактора.
Этапы строительства и их стоимость
ФУНДМЕНТ
Устройство свайно-винтового фундамента.
Свайное поле:
винтовые сваи оцинкованные 300(6)/-89(6)/30001
оголовки 210х210(4)/4-89(50)/4
СП 24.13330.2011 Свайные фундаменты для зданий класса ответственности III (пониженный) и II (нормальный).
305 042 ₽
КАРКАС
Деревянный каркас.
Обвязка фундамента:
пакет из четырёх досок, сечением 45х190 мм
Пол:
лаги 45х190 мм с обрешеткой 25х100(150) мм
697 820 ₽
ИЗОЛЯЦИЯ
Теплоизоляция, пароизоляция, ветрозащита и защита.
Утепление каркаса пола, стен и крыши:
минеральные плиты на основе базальта (не горючие) ISOVER Каркас П-34, толщина слоя 200 мм
483 272 ₽
ДВЕРИ И ОКНА
Система.
Окна:
Exprof 70 Profecta
Входная дверь:
КВЕ 70
Армирование 2,0. Профиль ламинированный снаружи. Фурнитура TITAN AF, VORNE.
405 448 ₽
ВНЕШНЯЯ ОТДЕЛКА
Крыша, фасад и терраса.
Покрытие:
стальные фальцевые Grand Line 0,45 мм, RAL 7024 с доборными элементами, покрытие Сатин
стальные фальцевые Grand Line 0,45 мм, RAL 7024 с доборными элементами, покрытие Сатин
Отделка:
массив дерева, профиль UYS 21х170, тонкопиленная поверхность
Отделка:
массив дерева, профиль UYS 21х170
ВНУТРЕННЯЯ ОТДЕЛКА
Стены, пол и потолок.
Сухие зоны:
Массив дерева, профиль UYS 21*170
Мокрые зоны:
ГВЛ Knauf 12мм
Сухие зоны:
OSB-3 18 мм или шпунтованная доска для пола 28*145
Мокрые зоны зоны:
OSB-3 18 мм
Везде:
натяжной ПВХ, белый, матовый или массив дерева
стоимость работы без фундамента и окон
БЕЗ ФУНДАМЕНТА
3 124 958 ₽
БЕЗ ФУНДАМЕНТА И ОКОН
2 789 510 ₽
Дизайн интерьера
Мы создаваем интерьеры, которые вдохновляют и заряжают энергией
Наша команда профессионалов занимается созданием уникальных концепций и реализацией проектов любой сложности. Мы гарантируем, что каждый наш клиент будет доволен результатом и найдет в своем новом интерьере источник вдохновения и уюта.
ПРЕИМУЩЕСТВА ДОМА
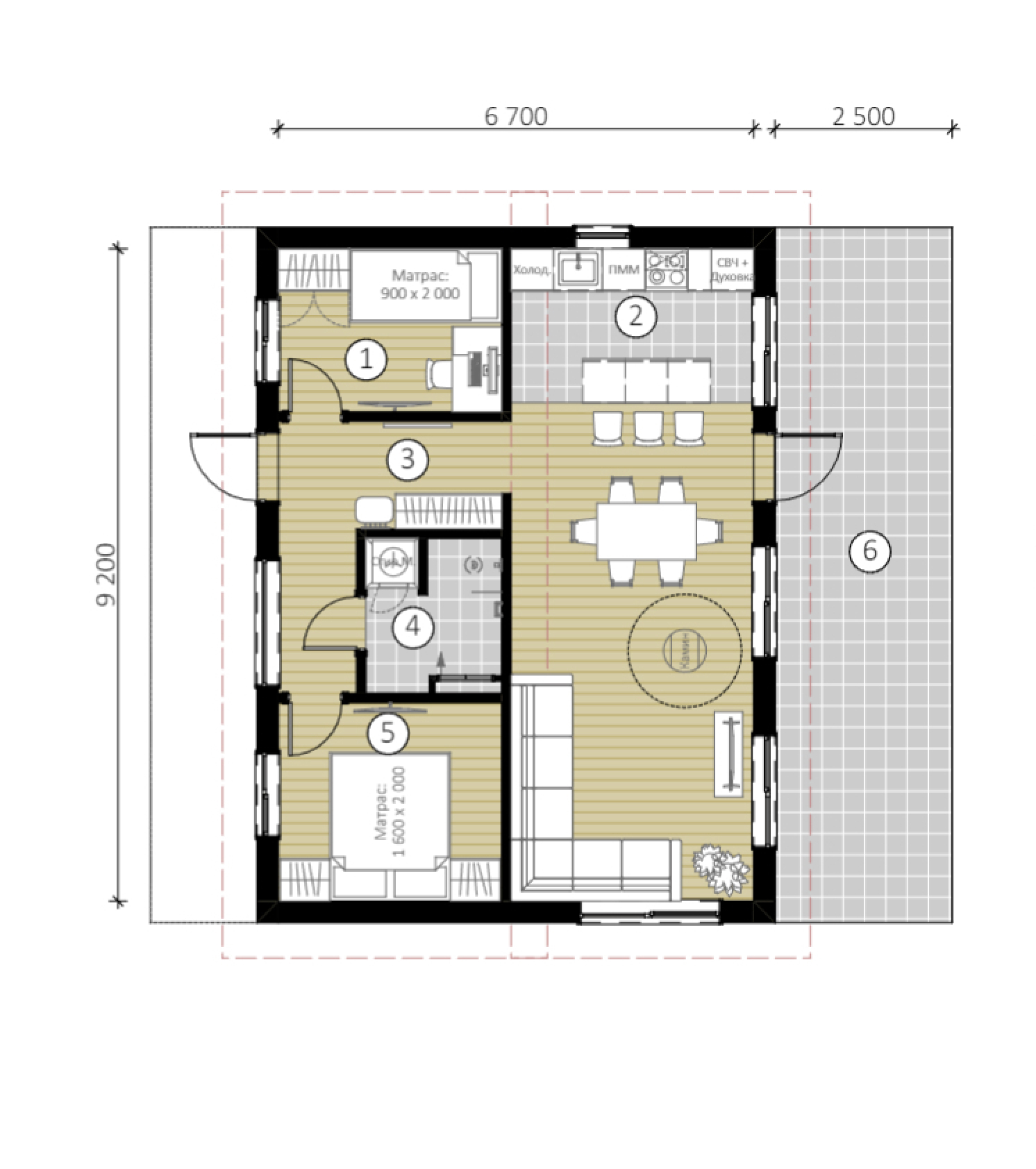
Дом вмещает все самое необходимое для отдыха за городом. Просторная гостиная с кухней, две спальни и даже сауна. Органичная терраса дополняет экстерьер, который уже стал современной классикой.
Долгие месяцы ожидания завершения строительства? Забудьте об этом. Framework будет готов уже через два месяца. Все дело в том, что в процессе строительства не используются «мокрые» трудоемкие работы.
Принудительная вентиляция в санузле и кухней-гостиной.
Дом возводится по финской каркасной технологии. Используются только качественные и проверенные временем материалы и точные профессиональные инструменты DeWalt и Swanson Tool.
Тепло и надежность нельзя увидеть, но вы непременно ощутите их, став владельцем этого небольшого дома. Утепление 200 мм всего контура в совокупности с сухим строганым брусом приятно вас удивят.